収益物件情報
長崎県長崎市城山台
この物件情報を印刷する
- エリア
- 長崎県長崎市城山台
- 価格
- 3,300万円
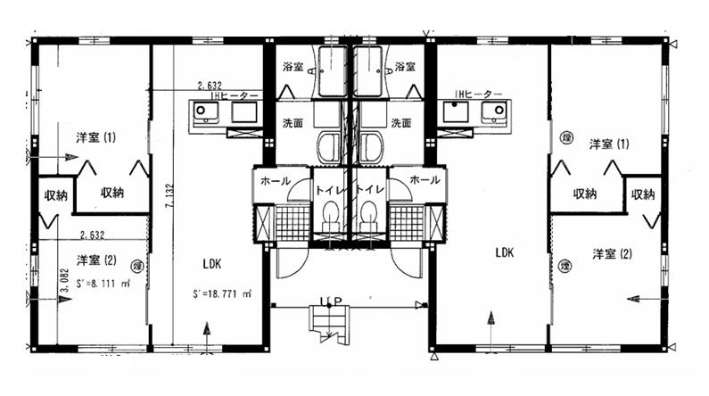
- 間取り
- 2LDK
- 建物面積(㎡)
- 199.4㎡ (1階:99.7㎡ 2階:99.7㎡ )(約60.32坪)
- 物件種目
- 一棟売アパート
- 土地面積
- 公簿442.44㎡(約133.84坪)
- 築年月
- 2007年11月
- 所在地
- 長崎県長崎市城山台1-18-22
- 交通
- 長崎バス西城山小学校下バス停まで12分、長崎バス城山台西口バス停まで10分
- 間取り内訳
- LDK12.4/洋室5.5/洋室5.5
- 階建
- 地上2階建
- 土地権利/借地権種類
- 所有権
- 建物構造
- 軽量鉄骨
- 都市計画
- 市街化区域
- 用途地域
- 第一種低層住居専用地域
- 地目
- 宅地
- 建・容率
- 50%・100%
- 駐車場
- 有:駐車場3台以上無料
- 駐車場:形式
- 自走(平置きも含む)
- 現況
- 賃貸中
- 条件
- オーナーチェンジ 11.41% 376万円
- 取引態様
- 一般媒介
- 引渡
- 即時
- 設備
- 上水道 下水道 エアコン 給湯 トイレ(専用) バス・トイレ別 温水洗浄便座 シャワー CATV インターネット対応 TVモニタ付きインターホン オール電化 太陽光発電システム
- 特記事項
- 外観タイル張り 駐車場3台以上無料
- 備考
◆年間賃料収入:376.8万円(表面利回り11.41%) ◆現在満室 ◆セキスイハイム施工 ◆オール電化 ◆太陽光発電システム ◆全室エコキュート2024年取替済み ◆上記の年間賃料収入と別途太陽光発電設備売電収入年間25万円(令和9年まで)



















































